2d cad drawing of elevation plan floor bungalow auto cad software
Description
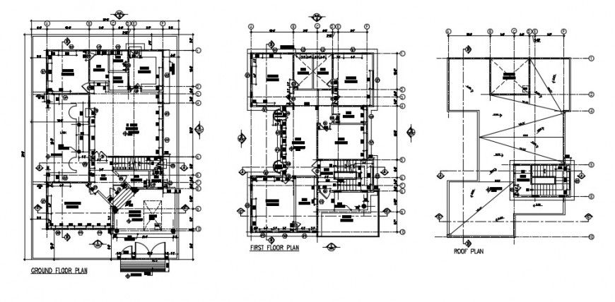
2d cad drawing of elevation plan floor bunglow autocad software detailed with elevation plan of ground floor and first floor plan and roof plan with detailed description and numbered point and direction given im drawing
Uploaded by:
Eiz
Luna
